Verbesserungsbeiträge
Verbesserungs- und Erneuerungsbeitrag für die Wasserversorgungseinrichtung
Die Gemeinde Jetzendorf betreibt eine eigene Anlage zur Wasserversorgung mit einem Rohrnetz mit einer Gesamtlänge von ca. 36 km. Um die Qualität der Wasserversorgung auch für die kommenden Jahrzehnte sicherzustellen, wurde die WipflerPLAN Planungsgesellschaft mbH mit der Erstellung eines Konzeptes zum Sanierungsbedarf der Wasserversorgung der Gemeinde beauftragt. Entsprechend dem Alter der Wasserleitungen aber auch unter Berücksichtigung der Daten aus Straßenbefahrungen und Kanalsanierungskonzepten wurde die Sanierung der Wasserleitungen in sechs Prioritäten aufgeteilt. Für die Wasserleitungen der Prioritäten 1 und 2 aus den Jahren weit vor bzw. um 1980 besteht in den kommenden Jahren konkreter Handlungsbedarf. Bis zum Jahr 2050 werden die Investitionskosten hierfür auf ca. 16 Mio. geschätzt.
Für die kommenden ca. 5 Jahre wurden folgende Abschnitte zur Sanierung beschlossen:
Straßenbereich | Gepl. Länge | Gepl. Baubeginn |
Indersdorfer Straße | 600 Meter | 2026 |
Im Schloss | 165 Meter | 2026 |
Kirchberg | 110 Meter | 2026 |
Gerolsbacher Straße | 400 Meter | 2027 |
Schrobenhausener Straße/Prielberg | 450 Meter | 2027 |
Aichacher Straße | 1.115 Meter | 2028 |
Purrbachstraße | 280 Meter | 2029 |
Kolmhof | 195 Meter | 2029 |
Maxhof | 400 Meter | 2029 |
Das geschätzte Investitionsvolumen hierfür beträgt ca. 3.867.500 € brutto.
In seiner Sitzung am 11.11.2025 hat der Gemeinderat der Gemeinde Jetzendorf beschlossen, diese Kosten zu 100 % über Verbesserungs- und Erneuerungsbeiträge zu finanzieren.
Im Folgenden möchten wir Ihnen die wichtigsten Fragen hierzu beantworten:
In Art. 5 des Kommunalabgabengesetzes (KAG) ermächtigt der Gesetzgeber die Gemeinden, Beiträge für den Aufwand für die Herstellung oder die Verbesserung der öffentlichen Wasserversorgungseinrichtung von den Grundstückseigentümern oder den Erbbauberechtigten zu erheben. Für die Gemeinde muss der Aufwand für die Wasserversorgung kostendeckend betrieben werden, die Gemeinde darf hier also weder Gewinne noch Verluste erzielen.
Verbesserungsbeiträge sind ein besonderes Entgelt dafür, dass einem Grundstück durch die Verbesserung einer öffentlichen Einrichtung wie z.B. der Wasserversorgungseinrichtung ein Vorteil erwächst. Der Verbesserungsbeitrag kann bei jeder Verbesserungsmaßnahme im Bereich der öffentlichen Einrichtung erhoben werden.
Die Finanzierung kann erfolgen
- mit der Erhebung von Beiträgen (Verbesserungsbeitrag) als Einmalzahlung,
- mit der Erhebung von Beiträgen (Verbesserungsbeitrag) als Ratenzahlung,
- mit einem Aufschlag auf die Wassergebühren oder
- mit einer Mischung beider Finanzierungsformen
Bisher wurden die Verbesserungsmaßnahmen in der Gemeinde Jetzendorf über einen Aufschlag auf die Wassergebühren finanziert. Die Gemeinde hat die Investitionen vorfinanziert und die Refinanzierung erfolgte über die verbrauchte Wassermenge auf einem Zeitraum von über 30 Jahren.
Die Gemeinde Jetzendorf ist aktuell und auch zukünftig nicht mehr in der Lage, die Investitionskosten über mehrere Jahrzehnte vorzufinanzieren. Aufgrund der Wichtigkeit einer zuverlässigen Wasserversorgung kann aber auch ein Investitionsstau nicht riskiert werden.
Der Wasserpreis wird in den kommenden Jahren u.a. durch weiter steigende Energiekosten, Personalkosten sowie der allgemeinen Inflation steigen. Eine Umlegung der Investitionskosten auf den Wasserpreis wie bisher würde diesen nochmals enorm erhöhen.
Mit dem Erneuerungs- und Verbesserungsbeitrag wird der Wasserpreis möglichst niedrig gehalten.
Weitere Gründe für den Erneuerungs- und Verbesserungsbeitrag:
- Auch unbebaute Grundstücke und Leerstände werden zum Verbesserungsbeitrag herangezogen.
- Für über Verbesserungsbeiträge finanzierte Anlagenteile werden keine kalkulatorischen Zinsen fällig. Bei der Finanzierung über Gebühren wäre der Gesamtbetrag zu verzinsen, was zu einer erheblichen Mehrbelastung führen würde.
Ein Verbesserungsbeitrag wird für alle bebauten, bebaubaren oder gewerblich genutzte bzw. gewerblich nutzbare Grundstücke erhoben, die ein Recht zum Anschluss an die Wasserversorgung der Gemeinde Jetzendorf haben oder tatsächlich an Versorgungsanlagen angeschlossen sind. Dies erfolgt unabhängig davon, in welchen Bereichen Sanierungen im Versorgungsnetz stattfinden.
Beitragspflichtig ist, wer im Zeitpunkt der Bekanntgabe des Bescheides Eigentümer des Grundstücks- oder Erbbauberechtigter ist.
Ein Versand an einen Nießbrauchnehmer oder Zustellungsbevollmächtigen ist nicht möglich. Sollte das Grundstück nach dem Wohnungseigentumsgesetz (WEG) geteilt sein, erhält jeder Eigentümer entsprechend seinen Miteigentumsanteilen einen separaten Bescheid.
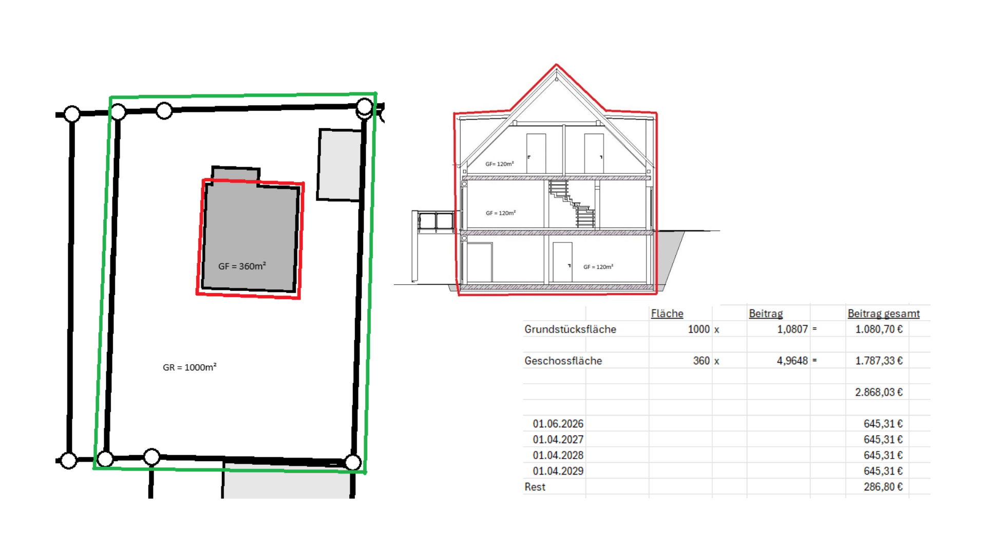
Der Verbesserungsbeitrag berechnet sich nach der Grundstücks- und nach der Geschossfläche.
Grundstücksfläche:
Grundstücke sind nur beitragspflichtig, wenn für sie ein Recht zum Anschluss an die Wasserversorgungseinrichtung besteht. Dies ist der Fall, wenn technisch die Möglichkeit zur Wasserversorgung vorhanden ist.
Beitragspflichtige Grundstücke werden mit der gesamten Fläche herangezogen. Für Grundstücke über 2.500 m² (sogenannte übergroße Grundstücke) gilt in den meisten Fällen eine Begrenzung auf das 4-fache der darauf errichteten Geschoßfläche, mindestens aber 2.500 m². Bei der Wasserversorgung ist es unerheblich, wie die Grundstücke entwässert werden.
Geschossfläche:
Die Geschossfläche berechnet sich nach den Außenmaßen der Gebäude in den ausgebauten Geschossen. Die Wohn- oder Nutzflächenberechnung ist hier nicht maßgeblich.
Keller werden mit der vollen Fläche herangezogen.
Das Dachgeschoss wird mit einberechnet, soweit es ausgebaut ist. Hierbei ist die begehbare Höhe zur Dachschräge unerheblich. Lediglich abgemauerte Flächen werden abgezogen.
Garagen sind beitragspflichtig, sobald sie einen Zugang zum Wohnhaus haben oder tatsächlich an die Wasserversorgungsanlage angeschlossen sind.
Gebäude oder selbständige Gebäudeteile, die nach Art ihrer Nutzung keinen Bedarf nach Anschluss an die Wasserversorgungsanlage auslösen, werden nicht herangezogen; das gilt nicht für Gebäude (-teile), die tatsächlich einen Wasseranschluss haben.
Die Grundstückseigentümer sind verpflichtet, der Gemeinde Veränderungen am Gebäude oder der Nutzung der Gebäude, die zu einer Änderung der Geschoßfläche führen, unverzüglich zu melden und über den Umfang dieser Veränderungen Auskunft zu erteilen.
Die vorläufigen Beitragssätze belaufen sich je m² Grundstücksfläche auf 1,0807 € brutto und je m² Geschossfläche auf 4,9648 € brutto.
Die Fälligkeit des vorläufigen Beitrags erfolgt in mehreren Abschlagszahlungen:
Zahlungszeitpunkt | Höhe der Abschlagszahlung |
01.06.2026 | 22,5 % gemäß Kostenschätzung |
01.04.2027 | 22,5 % gemäß Kostenschätzung |
01.04.2028 | 22,5 % gemäß Kostenschätzung |
01.04.2029 | 22,5 % gemäß Kostenschätzung |
Nach Abschluss der Maßnahme | Restzahlung anhand tatsächlicher Kosten |
Damit sich jeder Beitragspflichte bereits jetzt auf die Belastung vorbereiten kann, haben wir folgende Beispiele erstellt:


Die durchschnittliche Belastung gemäß diesen Beispielen beläuft sich auf ca. 2.600 €, was bei einem Investitionszeitraum von ca. 5 Jahren einer monatlichen Belastung von ca. 45 € entspricht. Dies entspricht einer monatlichen Belastung ähnlich der anderen wichtigen Infrastruktur wie Strom oder Telefon/Internet.
Voraussichtlich in März 2026 erhalten alle Grundstückseigentümer und Erbbauberechtigte ein Schreiben der Gemeinde zum Abgleich der Grundstück- und Geschossflächen.
Die konkreten Bescheide werden dann voraussichtlich am 01.05.2026 mit Fälligkeit der ersten Vorauszahlung zum 01.06.2026 versandt.
Die endgültigen Beiträge können erst nach Abschluss der Maßnahme ermittelt werden. Hierzu erfolgt ein gesonderter Bescheid.
Bestehende SEPA-Mandate gelten nur für die laufenden Gebühren. Der Verbesserungsbeitrag bzw. Vorauszahlungen werden nicht abgebucht, sondern müssen vom Beitragspflichtigen separat überwiesen werden.
Die Beitragsschuld entsteht zum Zeitpunkt der Fertigstellung der Gesamtmaßnahme (derzeit voraussichtlich 2029). Daher sind die Geschoßflächen und Grundstücksflächen zu diesem Zeitpunkt entscheidend und werden für die Berechnung herangezogen. Eventuell geleistete Vorauszahlungen werden von diesem Betrag abgezogen. Es ist unerheblich, welche Flächen der Berechnung der Vorauszahlungsraten zu Grunde gelegt wurden. Maßgeblich ist nur der geleistete Vorauszahlungsbetrag.
Nein. Gleichzeitig mit dem Inkrafttreten der Erneuerungs- und Verbesserungsbeitragssatzung wurde ein vorläufiger Herstellungsbeitrag kalkuliert. Nach Abschluss der Maßnahmen und der Festsetzung des endgültigen Verbesserungsbeitrages, wird dann auch der Herstellungsbeitrag angepasst. Zukünftige Bauherren leisten also ebenfalls einen Beitrag zur Sanierung der Wasserleitungen.
Wird ein beitragspflichtiges Grundstück nach der Erhebung des Verbesserungsbeitrags verkauft, liegt es am Verkäufer, den gezahlten Verbesserungsbeitrag in den Verkaufspreis einzurechnen. Durch die Zahlung des Verbesserungsbeitrags ist die Wasserversorgung für das betreffenden Grundstück in den nächsten Jahrzehnten gesichert. Dies stellt eine Wertsteigerung für das Grundstück dar, die im Grundstückspreis berücksichtigt werden sollte.
Die bereits vom Voreigentümer entrichteten Vorauszahlungsraten werden nicht zurückbezahlt. Sie werden dem neuen Eigentümer bei der Abrechnung des Verbesserungsbeitrags als Vorauszahlung abgezogen. Soll der neue Eigentümer die bereits entrichteten Vorauszahlungsbeiträge übernehmen, ist dies privatrechtlich im Kaufvertrag zur regeln und untereinander auszugleichen.